Portman Gate, Lisson Grove, NW1 6LW
£1,395,000 Guide Price
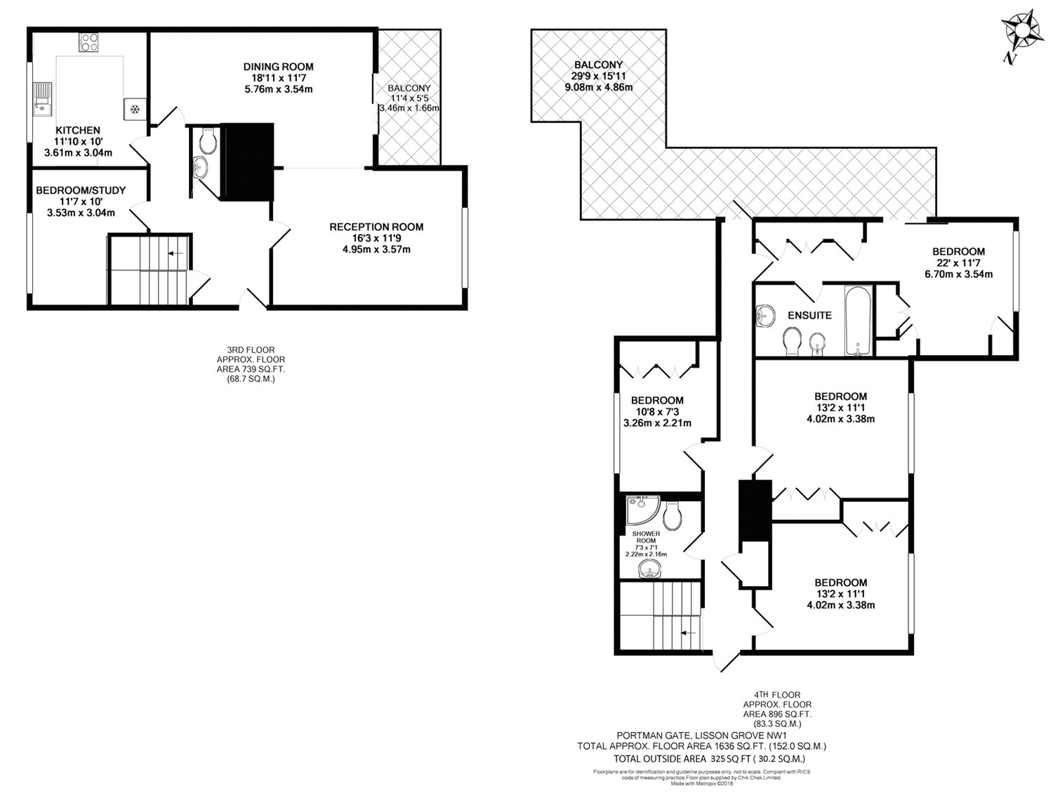
4 Bed Apartment For Sale Freehold Share
A spacious duplex penthouse, located in a well maintained block with 24 hour porters, boasts a large terrace and a balcony.
On the 3rd floor (with lift) the apartment comprises adjoining spacious reception and dining rooms with a 60 sq ft balcony; a well planned fully fitted kitchen and a study (or bedroom) with views on to the communal gardens; a guest WC.
The 4th floor comprises 3 bedrooms and a separate bathroom; a master bedroom with ensuite; all bedrooms have plenty of built in wardrobes. The hall leads on to the fantastic 260 sq ft terrace, affording 180 degree views across the London skyline.
Portman Gate is a very well maintained block with porters, entrance security, communal gardens, a gym and recently refurbished swimming pool. The apartment comes with 2 designated parking spaces in the secure underground car park.
The apartment is located moments from Marylebone Station and within easy walking distance of Baker Street and Regent`s Park.
On the 3rd floor (with lift) the apartment comprises adjoining spacious reception and dining rooms with a 60 sq ft balcony; a well planned fully fitted kitchen and a study (or bedroom) with views on to the communal gardens; a guest WC.
The 4th floor comprises 3 bedrooms and a separate bathroom; a master bedroom with ensuite; all bedrooms have plenty of built in wardrobes. The hall leads on to the fantastic 260 sq ft terrace, affording 180 degree views across the London skyline.
Portman Gate is a very well maintained block with porters, entrance security, communal gardens, a gym and recently refurbished swimming pool. The apartment comes with 2 designated parking spaces in the secure underground car park.
The apartment is located moments from Marylebone Station and within easy walking distance of Baker Street and Regent`s Park.
Alvi Real Estate
33-35 Lisson Grove
Marylebone
London
NW1 6UB
United Kingdom
Phone: 0207 723 9222
Email: mail@alvi.com
A Energy Performance Certificate is currently unavailable!


